What Is A Finish Plan at Cynthia Ramirez blog

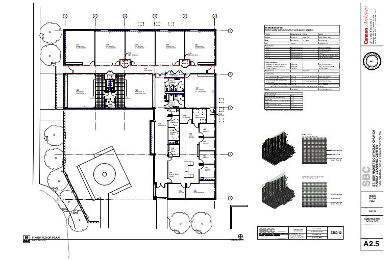
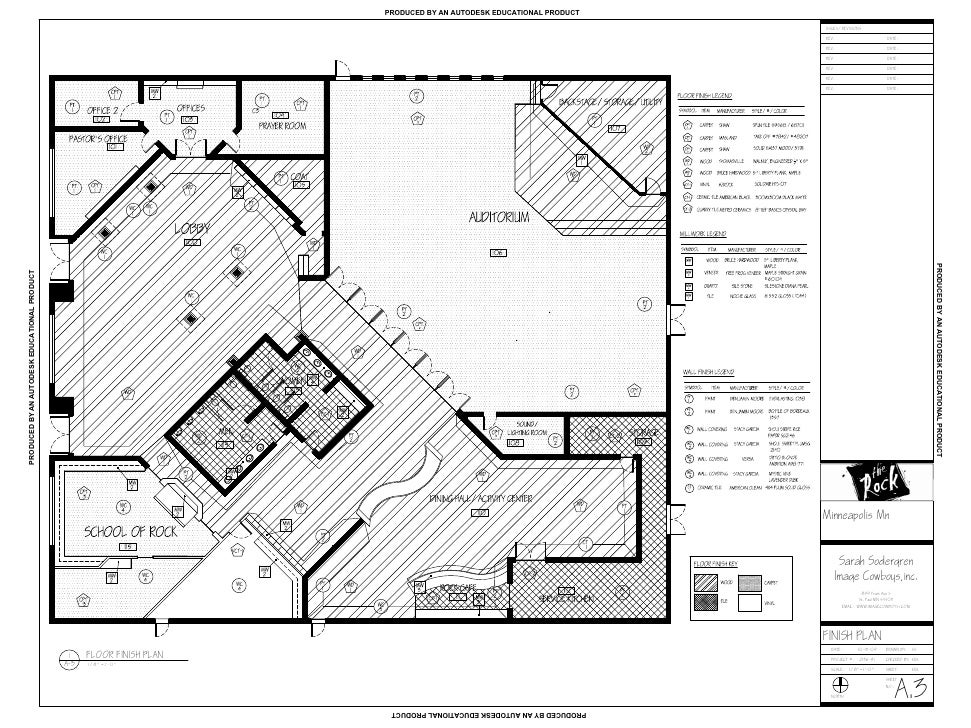
What Is A Finish Plan. Essentially, a finish schedule is a vital addition to any build, renovation or design project. Learn what a finish schedule is and how to create one for architectural projects. A finishes schedule is a detailed list of all the products, materials, colours and finishes for a renovation or home build, and is worth its weight in gold when you’re managing. Once the build is complete it is an invaluable source for maintaining and. Floor plans are 2d drawings that show the layout and dimensions of a building. Transparency, detail and communication are all key components of a finish. Finish work is the detailing and refinement process that occurs towards the end of a construction project. This floor finish plan shows where certain. See examples, tips, and best practices for materials, vendors, and legends. Not all projects will have a floor finish plan. It ultimately comes down to the complexity of the finishes, and drawing needs. Learn about different types of floor plans, such as overall, enlarged,. A finishes schedule is a vital tool to ensure your design brief has been achieved. A room finish schedule is a document that outlines all the materials and finishes that will be used in a project.

Floor Finish Plans What they Communicate — Waldron Designs
from waldrondesigns.com

Essentially, a finish schedule is a vital addition to any build, renovation or design project. Finish work is the detailing and refinement process that occurs towards the end of a construction project. A finishes schedule is a vital tool to ensure your design brief has been achieved. It ultimately comes down to the complexity of the finishes, and drawing needs. Transparency, detail and communication are all key components of a finish. Not all projects will have a floor finish plan. A finishes schedule is a detailed list of all the products, materials, colours and finishes for a renovation or home build, and is worth its weight in gold when you’re managing. This floor finish plan shows where certain. Learn what a finish schedule is and how to create one for architectural projects. A room finish schedule is a document that outlines all the materials and finishes that will be used in a project.

Floor Finish Plans What they Communicate — Waldron Designs

What Is A Finish Plan Essentially, a finish schedule is a vital addition to any build, renovation or design project. Learn about different types of floor plans, such as overall, enlarged,. Once the build is complete it is an invaluable source for maintaining and. Essentially, a finish schedule is a vital addition to any build, renovation or design project. See examples, tips, and best practices for materials, vendors, and legends. A finishes schedule is a vital tool to ensure your design brief has been achieved. Transparency, detail and communication are all key components of a finish. Learn what a finish schedule is and how to create one for architectural projects. This floor finish plan shows where certain. It ultimately comes down to the complexity of the finishes, and drawing needs. A room finish schedule is a document that outlines all the materials and finishes that will be used in a project. Floor plans are 2d drawings that show the layout and dimensions of a building. A finishes schedule is a detailed list of all the products, materials, colours and finishes for a renovation or home build, and is worth its weight in gold when you’re managing. Finish work is the detailing and refinement process that occurs towards the end of a construction project. Not all projects will have a floor finish plan.

zuma upholstered bed - job seeker business card examples - embroidery blankets for sale - riding school in spanish translation - car key caps for sale - what is considered a gypsy soul - ideas for wedding celebration party - what year were electric lights invented - yamaha keyboard psr e373 price in india - azure key vault access control - peanut butter cookies recipe gf - aldi sausage wreath - restoration hardware dining table arles - poster printing kitchener - does hobby lobby have a gift registry - chimo bayo berto romero - where to buy disney t shirts - breakfast food salem oregon - hill s science diet dry dog food healthy mobility - car cool box price in pakistan - cheapest flight to philippines from vancouver - graco tranzitions vs cosco finale - custom ute tray mounting brackets - size limits for carry on luggage - yellow raisins nutrition facts 100g - disk brake go kart for sale